Apie mus -
Kuriame funkcionalius, estetiškus interjerus, kurie užtikrina, kad jūsų namuose būtų ne tik gražu, bet ir patogu gyventi.
Techniniai patalpų brėžiniai/ Medžiagiškumo parinkimas/ Nestandartinių baldų braižymas/ 3D vizualizacijos/ baldų ir apdailos žiniaraštis.


60+
Sėkmingų Projektų
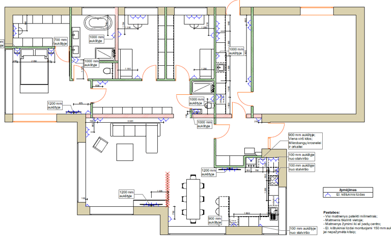
Techniniai 2D brėžiniai.
Įrenginėjant naują būstą ar nuo pagrindų atnaujinant seną.
(Nuo 6 Eur/m2) Terminas - 2 sav.


- Nestandartinių baldų braižymas;
- Elektros įvadų planas (Kištukinių lizdų);
- Santechnikos planas;
- Apšvietimo ir jungtukų išdėstymo planas.
- Pertvarų planas. Griaunamos, statomos sienos;
- Baldų išdėstymo planas;
Dalinis Projektas
Techniniai 2D brėžiniai + 3D vizualizacijos.
(10 Eur/m2) Terminas - 2-3 sav.


- Pasirinktų patalpų 3D vizualizacijos.
- Techniniai brėžiniai (pasirinktinai);
- Medžiagų parinkimas,
Pilnas projektas.
Techniniai 2D brėžiniai + 3D vizualizacijos + nestandartinių baldų braižymas. (10 Eur/m2 + po 25 Eur už nestandartinio baldo brėžinį)


- Nestandartinių baldų braižymas;
- Medžiagų parinkimas;
- 3D vizualizacijos;
- Nestandartinių baldų brėžiniai.
- Interjero stilistinis koliažas;
- Techniniai brėžiniai;
Kitos Paslaugos
Teikiame įvairias paslaugas, pradedant techniniais patalpų brėžiniais, medžiagų parinkimu, nestandartinių baldų braižymu ir 3D vizualizacijomis, baigiant baldų ir apdailos žiniaraščių sudarymu.
Taip pat siūlome paslaugų paketą, skirtą gyvenamojo būsto atnaujinimui bei naujos atmosferos kūrimui: stilistiniai koliažai, baldų išdėstymo planai ir 3D vizualizacijos.
Jei norite sužinoti daugiau, susisiekite el. paštu, arba tel. nr.
Kontaktu Forma
Užpildykite žemiau pateiktą formą, ir mes netrukus pateiksime atsakymą į jūsų nurodytą el. paštą.


Socialinė Medija
Kontaktai
+37069451247
© 2024. All rights reserved.
